
PS 64 Post Carbon School
Constructed Grounds
Columbia GSAPP Spring 2021, Critic: Miku Dixit
Site: PS 64 K-12 school, New York, New York
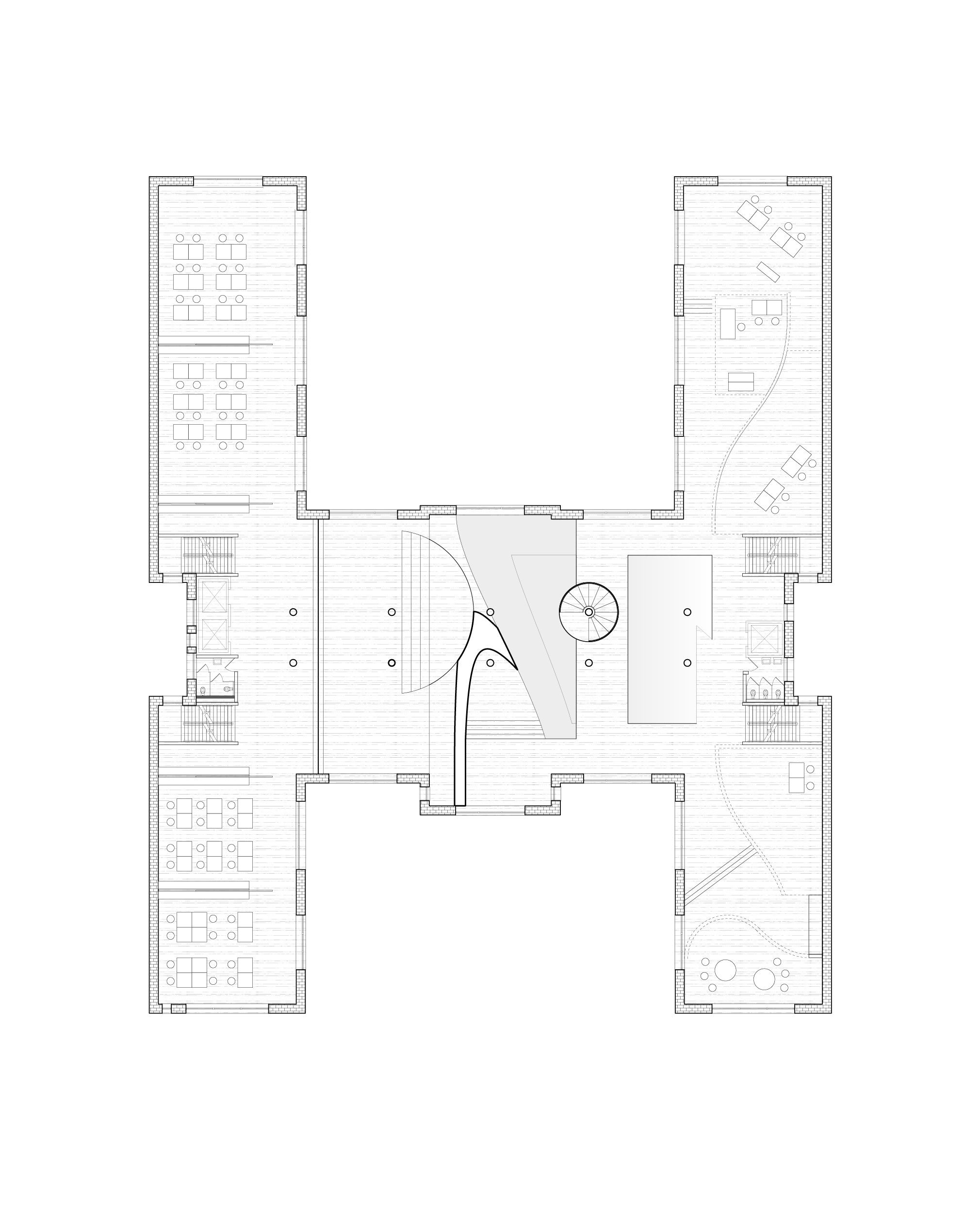
The proposed laboratory-school focuses on studying the city’s natural environments, drawing inspiration from its existing geological conditions. It is based on the belief that children can actively interact with and learn through constructed topographical conditions. The design features overlapping playing and learning spaces with research-centric, subject-based programs. The interplay of introduced sloped structures with existing buildings allows for interchangeable programs, offering various modes of habitation.
Constructed Grounds
Columbia GSAPP Spring 2021, Critic: Miku Dixit
Site: PS 64 K-12 school, New York, New York
The proposed laboratory-school focuses on studying the city’s natural environments, drawing inspiration from its existing geological conditions. It is based on the belief that children can actively interact with and learn through constructed topographical conditions. The design features overlapping playing and learning spaces with research-centric, subject-based programs. The interplay of introduced sloped structures with existing buildings allows for interchangeable programs, offering various modes of habitation.




︎︎︎Site tree study - seasonal

︎︎︎Ground Level Plan

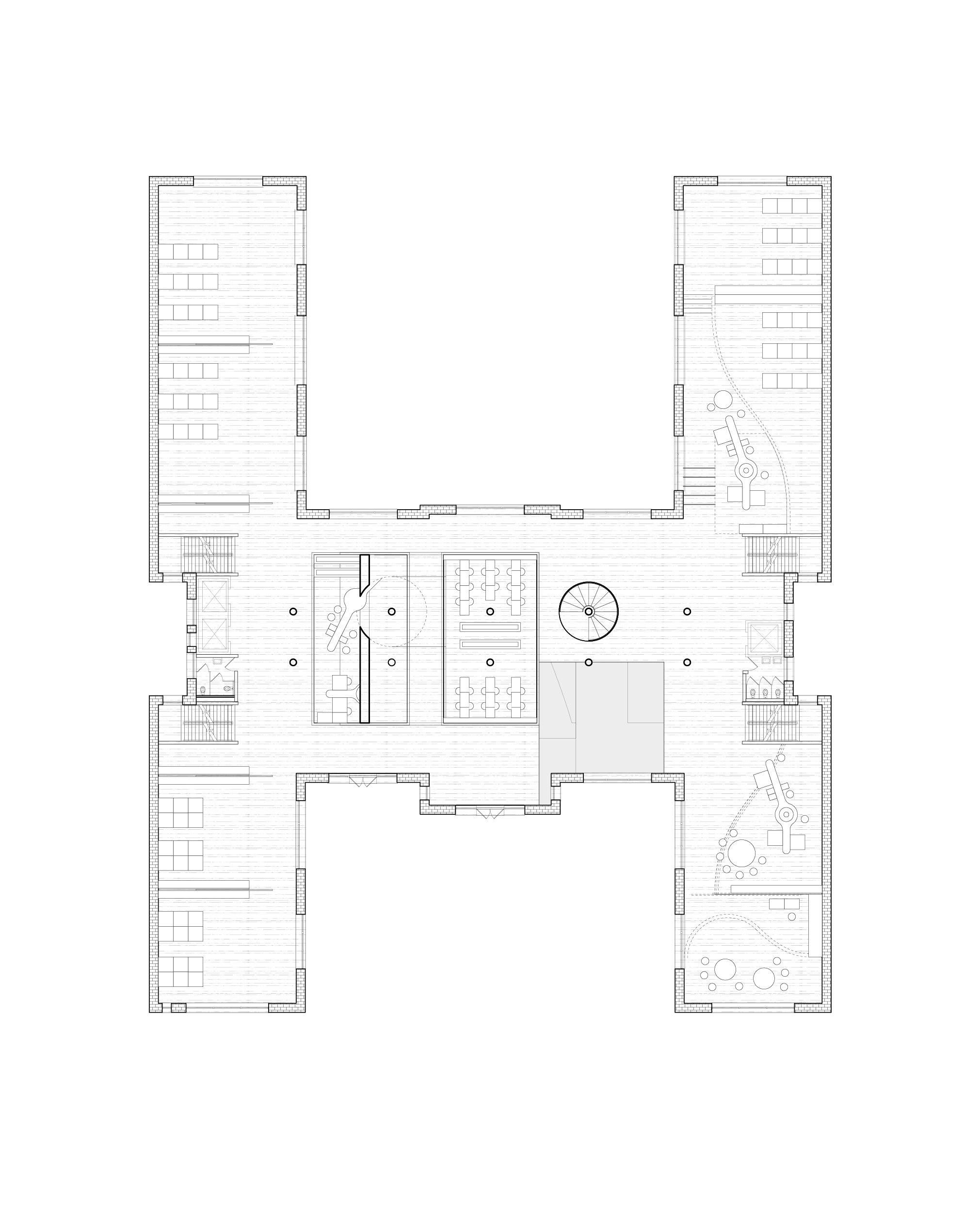
︎︎︎ First Level Plan
Second level
![]()

Thrid level
![]()

Fourth Level
![]()


Section through site surrounding

︎︎︎ Spatial Prototypes
︎︎︎ Concept Models


